Ir al contenido
Inicio
Somos
Proyectos
Reconocimientos
Contacto
Inicio
Somos
Proyectos
Reconocimientos
Contacto
Catálogo PDF
Volver a proyectos
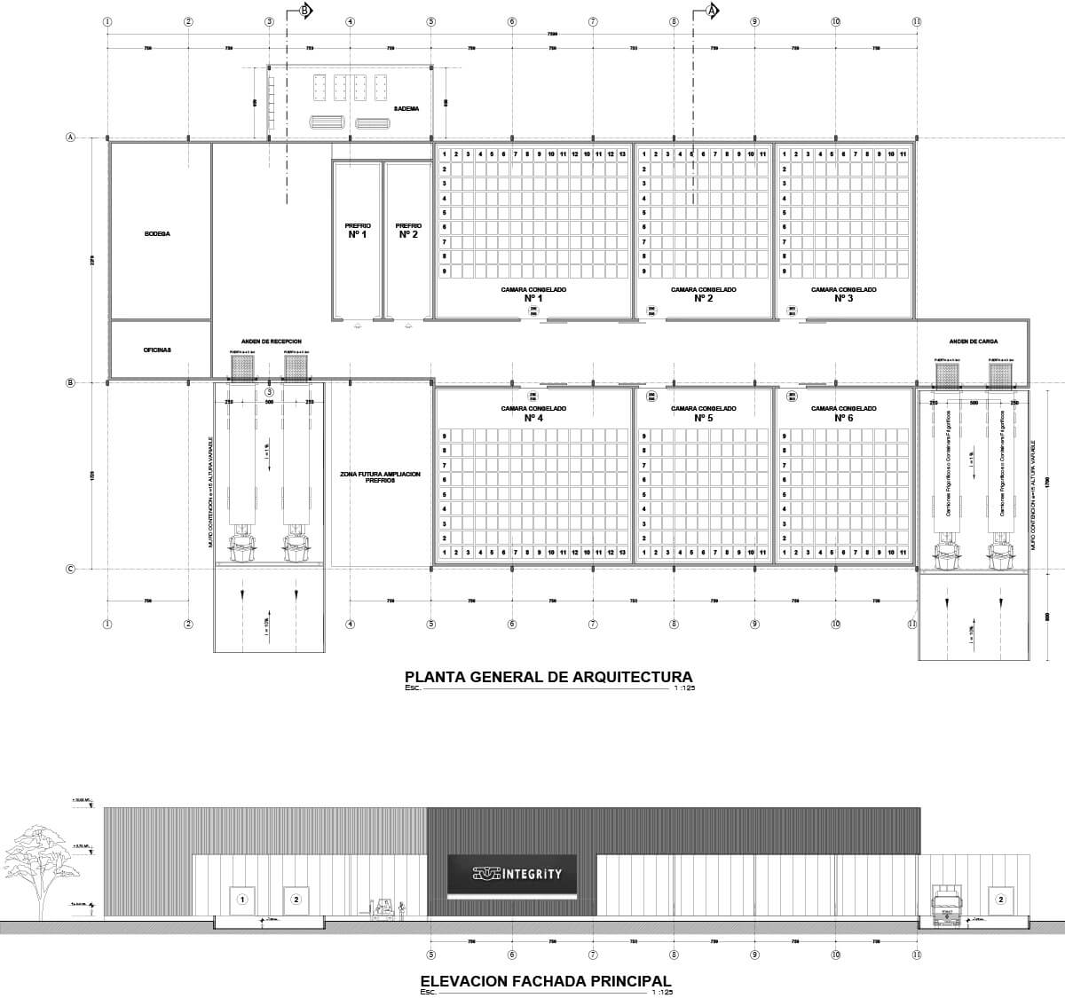
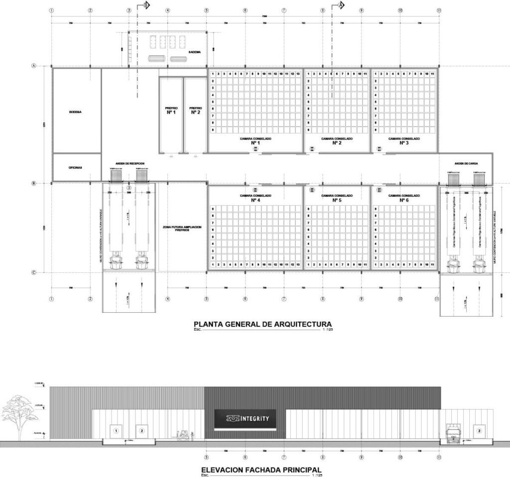
CAMARA CONGELADOS
+ Mandante:
INTEGRITY S.A.
+ Ubicación:
RUTA 5 SUR, KM 466, CABRERO
+ SUPERFICIE:
2.745,32m
2
+ Año:
2010
Plano Arquitectónico
Prev
Anterior
PLANTA ELABORACION PRODUCTOS DEL MAR
Siguiente
PALETIZADO AUTOMATICO PLANTA CENKIWI
Next
Inicio
Somos
Proyectos
Reconocimientos
Contacto
Descargar